孩子們都喜歡的幼兒園裝修設計方案
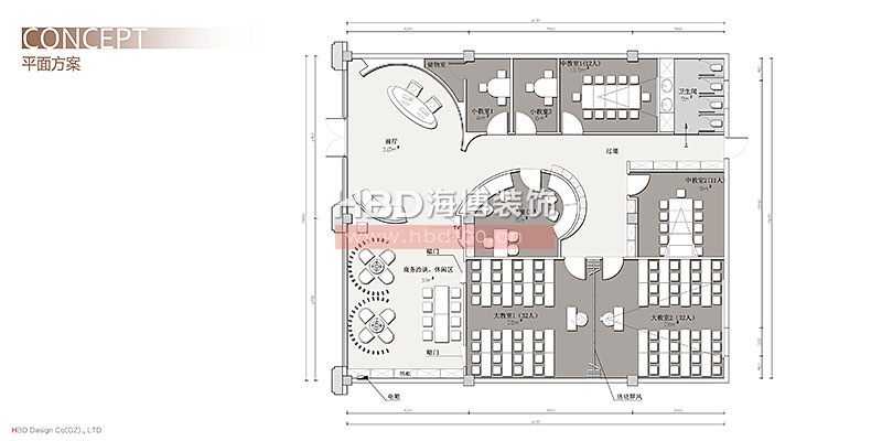
幼兒園是孩子們活動玩樂接收教育的地方,是孩子們的天堂,是接收知識,展現自我的舞臺。在幼兒園裝修設計整體規劃上,海博裝飾會結合孩子的心理和生理特點,因地制宜的為幼兒園服務。孩子天真無邪,喜歡探索新奇的事物,應該 讓他們多接觸大自然,海博裝飾在整體設計時會特別注重景觀設計,它給孩子更廣闊的空間。






詳詢海博裝飾李經理/180-2620-7127
本站部分文字及圖片來源于網絡,版權歸原創者所有,如有侵權請及時通知我們。 180-2620-7127 李小姐
137-1150-4887
在線咨詢
